Descrizione

Roma, Formello, località Le Rughe, proponiamo in vendita una splendida porzione di bifamiliare interamente residenziale per oltre 300 Mq e già predisposta per essere facilmente suddivisa per due nuclei familiari.
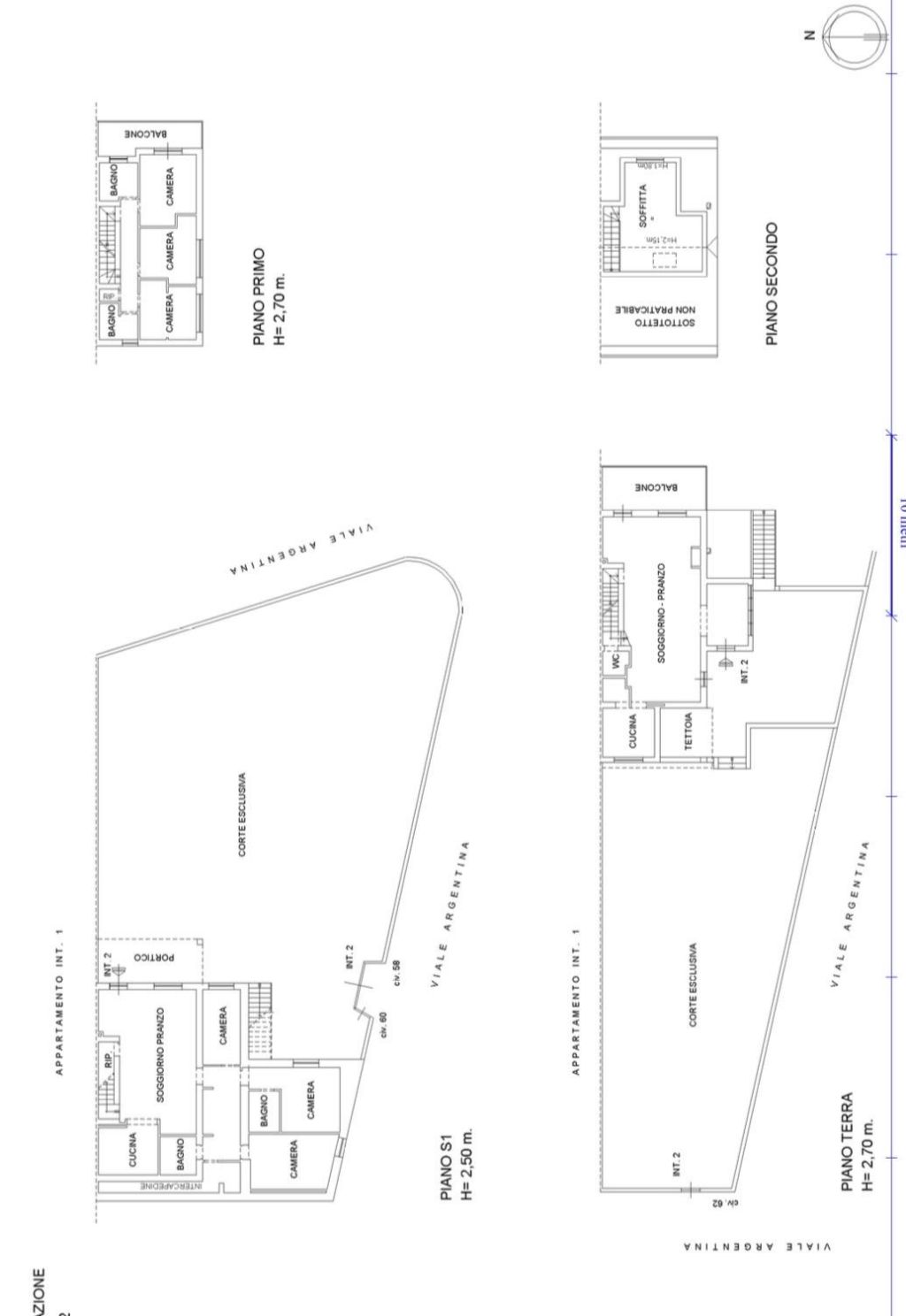
La villa che principalmente si sviluppa su tre livelli quasi interamente fuori terra è così composta:
Al piano S1 troviamo un accesso carrabile con un primo ampio giardino e posteggi auto, un salone doppio con camino, cucina abitabile, due camere, cameretta e tripli servizi.
Al piano terra troviamo un ampio ingresso veranda, un salone doppio con camino, cucina, bagno, un balcone, terrazzo e un altro giardino.
Al primo piano troviamo un disimpegno con due camere da letto, cameretta e doppi servizi.
Completa la proprietà una comoda mansarda abitabile utilizzabile come studio o sala giochi.
A pochi metri dalla villa troviamo inoltre un appezzamento di terreno di circa 1000 Mq.
La frazione " Le Rughe", nasce intorno agli anni 60 come comprensorio residenziale in base ad un piano regolatore che prevedeva la creazione esclusiva di villini precludendo qualsiasi forma differente di struttura ai fini della salvaguardia dell'ambiente di eccezionale interesse naturalistico.
Questa splendida villa possiede innumerevoli potenzialità sia in termini di comodità abitativa sia in termini di investimento, è possibile infatti abitare i due livelli principali e affittare il piano seminterrato creandosi un ottima rendita annua.

Caratteristiche specifiche

  • RIFERIMENTO ANNUNCIO
    177M/25 - 09/12/2025
  • CONTRATTO
    Vendita
  • TIPOLOGIA
    Appartamento
  • SUPERFICIE
    310 m²
  • LOCALI
    1 Ingresso/i, Salone, Cucina,7 Camere,5 Bagni,1 Terrazzi,2 Balconi, Giardino 1600,
  • PIANO
  • POSTI AUTO
    Posto Auto mq 0
  • DISPONIBILITÀ
  • TIPO PROPRIETÀ
    signorile

Posizione

Viale Argentina , 00100.
Roma, Lazio

ottimo
Cod. Rif. 177M/25
  • image

    310 m2

    superficie

  • image

    8

    Locali

  • image

    5

    bagni

  • image

    Piano

  • image

    64 foto

€ 545.000,00