Descrizione

Fonte Nuova – Elegante appartamento con terrazzo perimetrale e posto auto
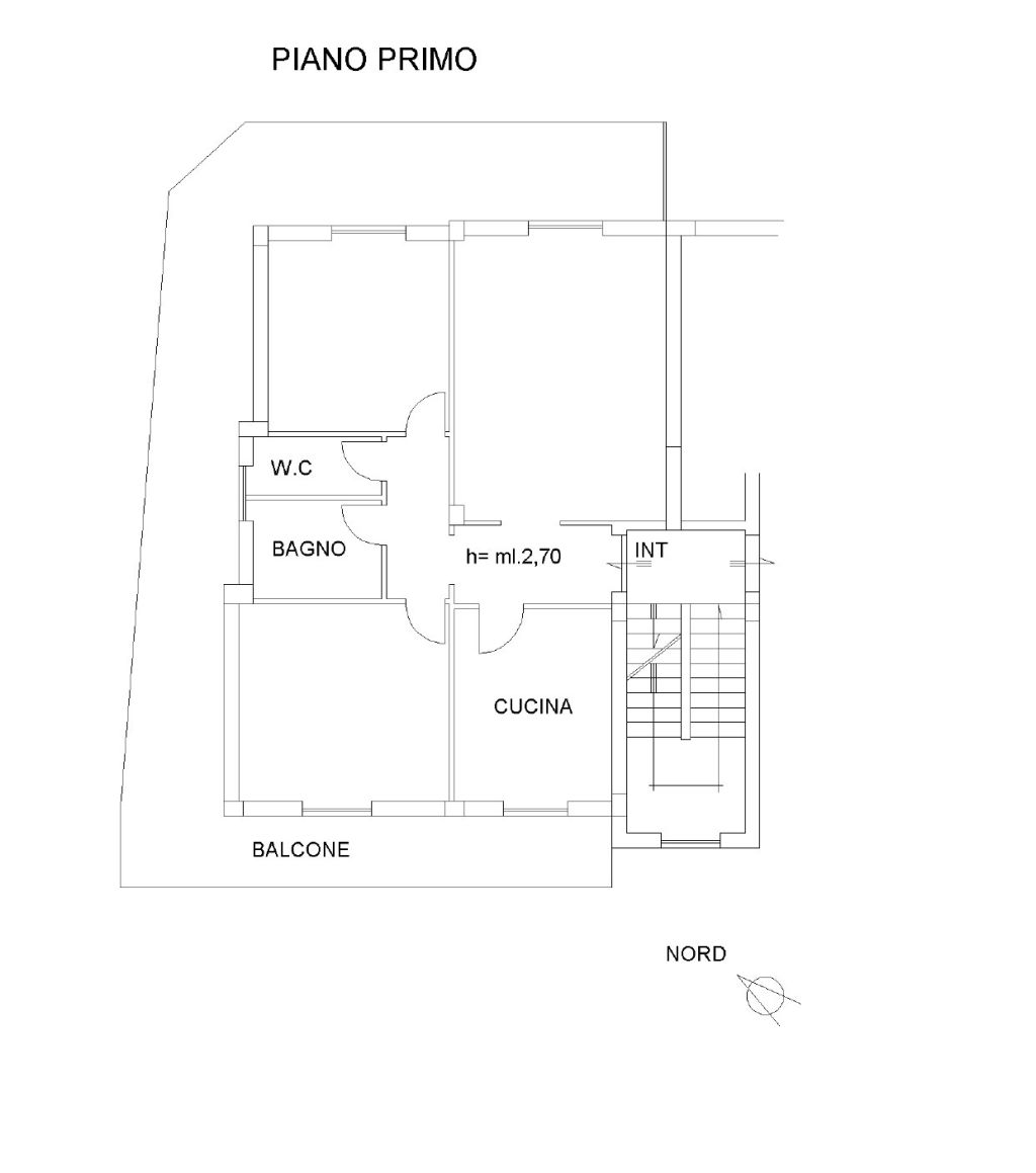
Nel cuore di Fonte Nuova, e più precisamente in via Machiavelli, proponiamo in vendita un appartamento signorile di circa 110 mq, situato al primo piano di una splendida palazzina elegante e ben curata.
L’immobile, in buono stato di manutenzione, è così composto:
- Ingresso
- Ampio salone con camino, ideale per momenti di relax e convivialità
- Cucina abitabile
- Due camere da letto
- Due bagni con finestra
- Spettacolare terrazzo perimetrale di circa 50 mq, accessibile da più ambienti e affacciato su tre lati, perfetto per godere di momenti all’aperto in totale privacy
A completare la proprietà, un comodo posto auto interno al condominio.
Posizione strategica, centrale ma riservata, vicina a tutti i principali servizi e collegamenti.
Un’ottima soluzione per chi cerca spazi comodi, luminosità e comfort in un contesto elegante.

Indice di prestazione energetica G 175,95 kWh/m² anno


Il presente annuncio ha valore puramente indicativo e non costituisce elemento contrattuale

Caratteristiche specifiche

  • RIFERIMENTO ANNUNCIO
    52A/25 - 06/10/2025
  • CONTRATTO
    Vendita
  • TIPOLOGIA
    Appartamento
  • SUPERFICIE
    110 m²
  • LOCALI
    1 Ingresso/i, Salone, Cucina,2 Camere,2 Bagni,1 Terrazzi,
  • PIANO
  • POSTI AUTO
    Posto Auto mq 0
  • DISPONIBILITÀ
    Libero
  • TIPO PROPRIETÀ
    signorile

Posizione

Via Niccolò Machiavelli , 00013.
Fonte Nuova, Lazio
Fonte Nuova Tor Lupara

Fonte Nuova Tor Lupara

buono
Cod. Rif. 52A/25
  • image

    110 m2

    superficie

  • image

    3

    Locali

  • image

    2

    bagni

  • image

    Piano

  • image

    20 foto

€ 199.000,00